她将自己156平极简风新家,晒到同学群里,惹得大家都羡慕不已
装修风格:现代风格
实际面积:156平米
空间格局:两室两厅两卫
设计师:叶鸣蝉设计工作室
项目位置:广东省广州市
装修造价: 全包预算35W
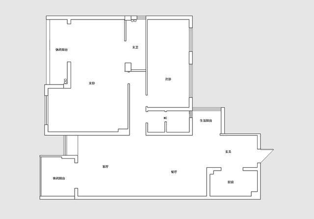
01户型图
文章插图
原始结构图
这一个超舒适的两居室户型 , 拥有超大的两个卧室空间 , 从格局上碾压其他市场上大部分的两居室格局 , 无论从面积上 , 还是结构的分布上 , 都是非常值得推荐的好户型;次卧室狭长的空间 , 拥有两扇很大的窗户 , 给卧室增加很强的采光效果;除了不是南北通透之外 , 还有采光不是特别好 , 几乎没什么缺点了 。
02平面布置图
文章插图
平面布置图
入户右手边是一长排的鞋柜 , 为了保持鞋柜的整体性 , 一直把通往生活阳台也连接上了 , 生活阳台留出门洞 , 在门洞上面做吊柜 , 以求达到统一的整体 , 下面的设计等会儿可以看得出;厨房通过和餐厅的打通之后 , 很好地将光线引了进来;客厅旁边的阳台做了一个小书房出来;两个卧室都是做的套间的设计 。
03玄关
文章插图
玄关
文章插图
【她将自己156平极简风新家,晒到同学群里,惹得大家都羡慕不已】玄关
步入到玄关空间 , 第一眼就被这玄关设计所深深吸引 , 大气、敞亮给人一种极大的舒适感 , 无拉手柜门的设计和全身镜连接处 , 处理非常好 , 细节考虑到位 , 深灰色的地砖带给人沉稳的感觉 , 白与灰的搭配 , 呈现出一种简约的高级感 , 同时也营造出了视觉上的简约之美 。 玄关还有很多设计处理很好的地方就不一一讲解了 。
04餐厅
文章插图
餐厅
文章插图
餐厅
从玄关步入到餐厅空间 , 一股从玄关延伸过的简约之美迎面而来;细节之处 , 处处体现设计感 , 嵌入式的双开门冰箱设计 , 把冰箱的侧面做了很好的遮挡 , 餐厅和玄关的那面墙 , 用一整块很大的大理石 , 造价高 , 效果好 , 瞬间提高了餐厅的档次 。
05厨房
文章插图
厨房
文章插图
厨房
厨房在玄关的左手边位置 , 玻璃推拉门增大了厨房的视觉感;和餐厅之间的连通 , 更是为厨房做了一种视觉上的拉伸 。 根据业主的喜好 , 厨房采用了深灰、和大深灰的岩板搭配白色的橱柜 , 在保证色彩风格统一简洁的同时 , 使得厨房更耐脏 , 而且也很易于清理 。
06客厅
文章插图
客厅
文章插图
客厅
文章插图
客厅
电视背景墙摒弃了传统的设计做法 , 选择了木质护墙板打底 , 在中间部分铺贴大理石的方式 , 达到材质、层次、颜色的三层变化;内嵌电视机柜+悬空的抽屉 , 厨房面积得以扩大 , 两层递进也增强了立体感、层次感 , 也让客厅更加的方便打扫卫生;沙发背景墙做得比较简单 , 米色的造型 , 略带一些层次感 。
推荐阅读
- 十八线小县城,自己买材料,找游击队装修,太过简单,被坑了
- 第一次装修房子,125平却花了20多万,自己买材料,超出预算
- 自己简装,自己找人装修,没有包给装修队,硬装不用8万,值吗?
- 热水器出现e4故障码不点火?别慌!有时自己动手就可以修好
- 全是任性害惨自己!闷头随性装,一连错装这13处,钱花光还遭罪
- 太羡慕!她家露台比房子还大,自己种菜自己吃,日子过得幸福极了
- 养花浇水三年功,学会两点,让自己从小白变成大师
- 即便她已30+也不因议论,降低自己生活标准,一人一狗住69㎡
- 年末啦!来高岛屋犒劳自己吧!
- 高达3成净水器不合格,重金属超标严重,喝水都在给自己下毒?
