|10x10米三层平顶别墅,外观方正立面时尚,新农村超实用户型

文章图片

文章图片

文章图片

文章图片
随着经济的发展 , 农村建房不仅仅是居住需求 , 人们开始追求房子的外观及布局 。 怎样建造一栋外型精美大气、内部布局合理实用、造价又便宜的别墅呢?
今天就特地带给大家一款平顶设计的三层别墅户型 , 客厅空间超级大 。
图纸编号:yg589
开间:10米
进深:10.1米
占地面积:101平方米
建筑面积:351平方米
建筑结构:框架结构
主体造价:28万左右
本建筑整体为欧式风格 , 造型丰富 , 外墙色彩偏低调 , 并且以浅色系为主 , 整体凸显稳重大气 。
【|10x10米三层平顶别墅,外观方正立面时尚,新农村超实用户型】
去掉坡屋顶不仅降低了施工难度 , 还极大程度的节约了建房成本 , 而超大的露台又是最佳的休闲、晾晒场所 , 所以平顶别墅一直深受南方家庭的喜爱 。
一层平面图:客厅、餐厅、厨房、公卫、2间卧室 。
入户即是客厅 , 工作了一天的疲惫 , 直接在客厅的沙发上休息 , 餐厅和厨房直通 , 非常方便 。 一层设两间卧室 , 都带有通风采光窗 , 居住环境较为舒适 。
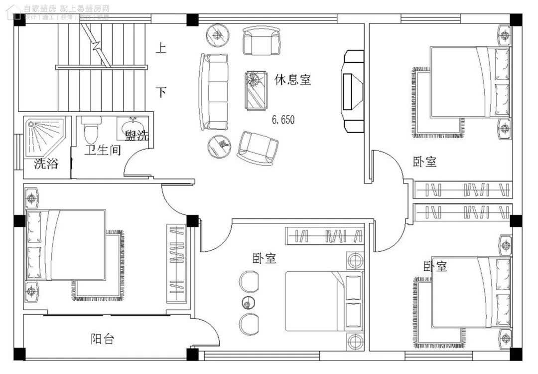
二层平面图:休息室、4间卧室、公卫、阳台、露台 。
二层休息室居于中间 , 有隔开卧室、缓冲空间的作用 , 每日起床也有可以坐着放松的地方 。 南面还带露台 , 非常实用 。
三层平面图:休息室、4间卧室、公卫、阳台、露台 。
三层布局与二层布局一样 。
楼顶为一个超大的露台 。
推荐阅读
- |带堂屋的三层农村别墅,占地12X12米,欧式设计太赞了
- |三层现代简约别墅,外墙颜色双拼,你觉得建在农村怎么样?
- |两栋宽11米的二层别墅,平顶+斜屋面设计,看看你中意哪款!
- |农村三层别墅,经典的欧式造型,精致豪华又大气,看过的都夸好
- |新中式能美成什么样?来看看这栋178m2三层别墅,煞羡旁人
- |9.8×13.6米三层精美小别墅,拥有他,简直不要太享受!
- 贾玲|贾玲别再吃了,脖子都变“三层”了,自圆其说:不减肥是怕观众不接受
- |章子怡两亿豪宅遭曝光,装修奢华有三层,自带泳池后花园大到空旷
- |客厅挑空,餐厨独立,农村三层这么建,从此告别低调!
- 社交平台|章子怡两亿豪宅曝光,宫廷级装修太奢华,三层小楼还带泳池花园
