传统文化|90㎡家居 | 深受年轻人追捧的小清新风设计

文章图片

文章图片

文章图片

文章图片

文章图片

文章图片

文章图片

文章图片
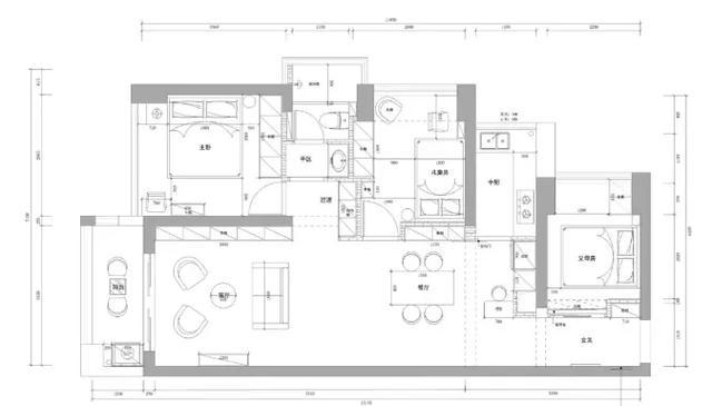
今天推荐的是90㎡简约风格装修 , 夫妻+可爱的小女儿+父母一同居住 , 一家人希望新家简洁舒适 , 有文艺气息 , 又干净实用 。 平面图
玄关
玄关白色六边砖 , 六边花砖铺贴落尘区 , 与木地板进行拼铺设计 , 让人一进门就被吸引穿衣镜挂衣钩换鞋凳 , 功能一个不落 。
客厅
室内整体以自然环保的 , 原木材质为基调 , 有着清新自然的舒适风格 , 电视背景墙整面书柜的造型增加收纳空间 。
木地板加铺米白色棉质地毯 , 材质与沙发背景的墙饰 , 以及靠枕相呼应 , 沙发也极具造型 , 给人眼前一亮的感觉 。
客厅采光很好 , 每一件精挑细选的家具 , 都显得明朗温暖 , 北欧风的绿植 , 与整室风格也极为搭调 。
客餐厅
客餐厅统一使用的原木风格 , 舒适宜人 , 仿佛置身自然之中 。
餐厅开放式布局 , 更显得宽敞明亮 , 家具尺寸适中 , 不争不抢顺其自然 。
【传统文化|90㎡家居 | 深受年轻人追捧的小清新风设计】
整个空间地面通铺木地板 , 搭配木质家具 , 保证风格的统一性 , 玻璃吊灯营造就餐环境的 , 同时增加空间层次感 。
设计上考虑业主的生活习惯 , 餐厅设计清新的 , 收纳柜和操作台面 , 满足杂物和小电器的使用 。
厨房
厨房L型布局实用性强 , 木色+白色的橱柜 , 中部搭配花砖作背景 。
父母房空间有限 , 靠窗位置设计衣柜 , 墙面留白干净舒适 , 并与玄关相连在一起 , 做推拉门设计把自然光引入室内 , 增加玄关采光 。
儿童房
儿童房选择原木床搭配木地板 , 在脏粉色背景墙的衬托下 , 更显简约大方与素净 。
床尾规划写字台与休闲活动区域
打造入墙式木质书架 , 有效利用空间 , 屋顶形状小卡座 , 小主人会在这里看书玩耍 , 充满童趣 。
主卧
主卧低饱和用色温和亲近自然 , 浅色纱帘和床品 , 朴素自然 , 床头一侧是化妆台 , 一侧是方便移动的置物边几 。
床侧的置顶大衣柜 , 与过道的收纳柜 , 满足主卧的储物需求 。
卫生间
卫生间干湿分区 , 提高使用效率 , 简约大方的经典配色 , 耐看好打理 。 这套房屋中 , 墙面用了灰白色 , 比较适合业主冷静内向的性格 , 通过木色和绿色的提亮来丰富家里的色彩 , 让房屋又增加一些温馨感 。
推荐阅读
- 全屋定制家居哪家好,尼尔诺全屋定制家居咋样
- 曲美家居生活馆|关于衣柜布局必知的尺寸,32款超实用的衣柜布局参考,赶紧收藏PS.
- 新华家居|第六届兰舍商学院毕业典礼圆满举行
- 中国传统文化与智慧|但最蠢的两件事千万别干!,人的一生可以干很多蠢事
- 智能家居行业做生态好还是做单品好
- 许木木说月季|从很久之前就深受人们的喜爱,桃花是很古老的花朵
- 爱依瑞斯家居|客厅不仅可以格调十足,还可以如此温馨舒适,家居
- 家居科普君|房主太有创意,天花板全开天窗,120㎡独栋小房
- 有人了解常州市一米家居设计吗请谈谈他们的公司结构、服务项目和营销模式。
- |日本博主晒出自己家的“极简家居”,网友:这布置是真的简单啊
